Daten und Fakten
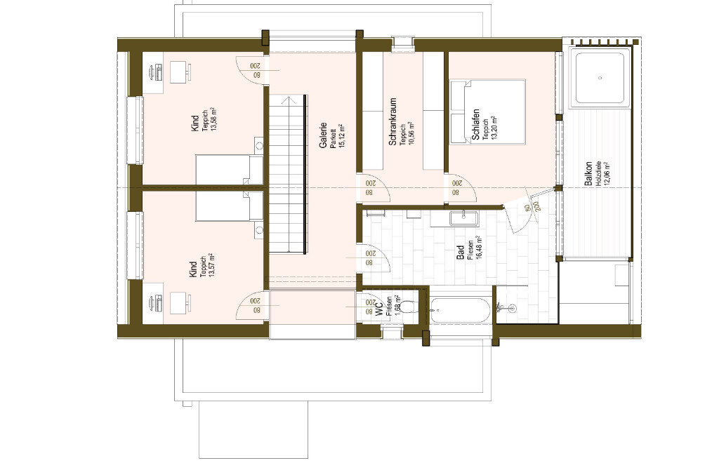
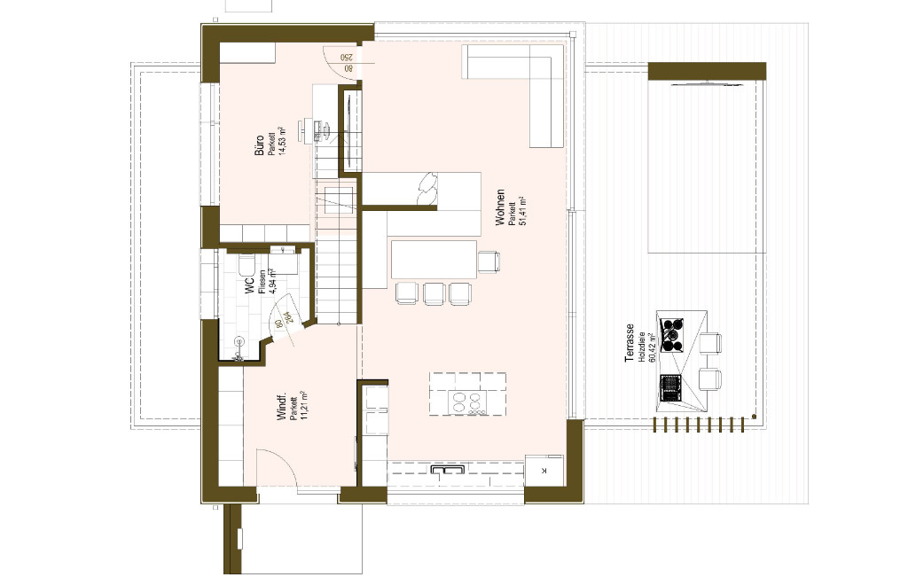
Holz als dominierendes Element: Das Musterhaus von Erler mit dem aussagekräftigen Namen „Autark“ wurde in vollökologischer, mit Naturmaterialien gestalteter Bauweise gefertigt. Die Außenwände bestehen aus leim- und nagelfreien Vollholzwänden, im Innenraum begeistern Vollholzsichtwände im Dialog mit Lehmputzoberflächen. Im Erdgeschoß befinden sich ein großzügig gestalteter Wohnbereich mit offener Küche sowie ein weiterer Raum, der sich beispielsweise als Büro nutzen lässt. Die Terrasse mit einem unter Bodenniveau ausgebildeten Sitzbereich ist ein einmaliger Eye-Catcher. Im Obergeschoß bieten drei Zimmer genug Rückzugsmöglichkeit, Schrankraum und Balkon sind vom großen Schlafzimmer aus zu begehen.
Unabhängige Energieversorgung
Beheizt und gekühlt wird das zukunftsweisende Haus durch eine Luft-Wärmepumpe: Wärme wird über die Fußbodenheizung abgegeben, Kälte über im Lehmputz verbaute Decken- und Wandkühlelemente. Das Musterhaus verfügt über eine 16 KW Indach-PV-Anlage, die den erzeugten Strom in einen Stromspeicher lädt. Somit ist gewährleistet, dass die Bewohnenden zu jeder Zeit ohne zusätzlichen Strom auskommen und das Haus somit „autark“ funktioniert.
Grundrisse
Bauweise
Massivholzkonstruktion
Parzelle
14
Nettogrundfläche
165m²
Contact
ERLER BAU GMBH
Loferer Bundesstrasse 2a, 5760 Saalfelden am Steinernen Meer
T +43 6582 76120
https://erler-haus.at
Weitere Häuser von ERLER BAU GMBH
Ähnliche Fertighäuser
Unser Lageplan.










