Daten und Fakten
Das Musterhaus ELK Vision 158 ist ein einzigartiges Beispiel für moderne Holzarchitektur und ihre vielseitigen Gestaltungsmöglichkeiten. Zeitgemäßes Satteldach, durchdachtes und markantes Fassadendesign sowie eine beeindruckende fast 100 m2 große L-förmige Dachterrasse sind seine prägnanten äußeren Merkmale. Mit einer perfekten Symbiose aus Raum, Licht und Farbgestaltung setzt ELK mit dieser Hauslinie neue Maßstäbe für ein zukunftsweisendes Wohn-Ambiente, geprägt durch Eleganz und Komfort.
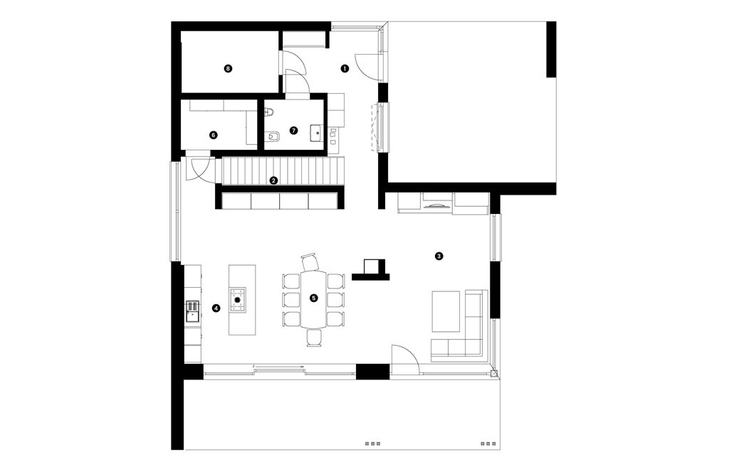
Zu den Details: Der Kamin im Wohn-/Essbereich sorgt für gemütliche Stunden und die großflächigen Fenster bieten bestmögliche Ausblicke. Der Wohnbereich wurde geschickt abgeschieden, um eine ruhige Zone zu schaffen. Der Essbereich bietet wiederum reichlich Platz für einen groß dimensionierten Tisch, ideal zur Bewirtung von Freundesrunden.
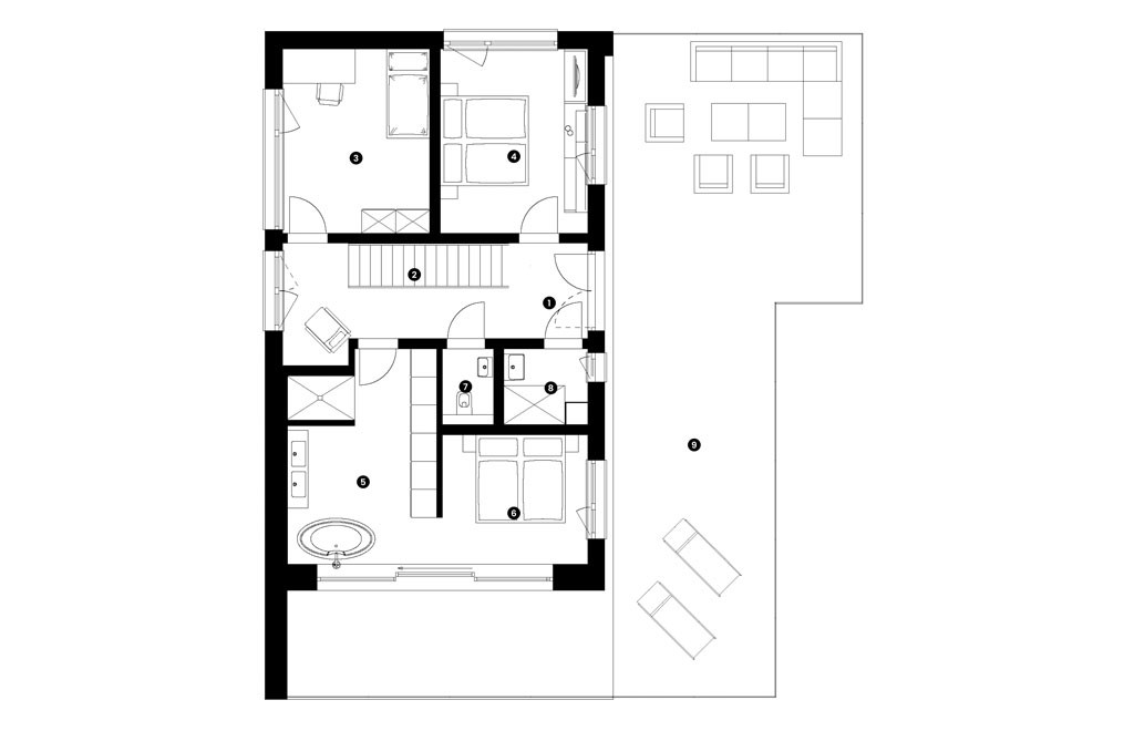
Im Obergeschoß sind insgesamt drei Schlafzimmer untergebracht sowie ein separates WC und ein kompaktes Duschbad. Das Haupt-Schlafzimmer wird mit Bad und Ankleidezimmer zu einem harmonischen Ensemble. Die begehbare, barrierefreie Dusche, die Eckbadewanne und die gebotene Aussicht sind weitere Highlights dieses Hausbereichs.
Grundrisse
Bauweise
Holzrahmenkonstruktion
Parzelle
46
Nettogrundfläche
178m²
Weitere Häuser von ELK GmbH
Ähnliche Fertighäuser
Unser Lageplan.









